Entre el Mar Mediterráneo y el Océano Atlántico, y a unos pocos kilómetros de África, más allá de las playas de arena fina y aguas cristalinas, no hay rincón de Cádiz sin encanto. Cada apartamento ha sido diseñado para combinar la exquisitez decimonónica de su construcción con los altos estándares de la vida urbana actual.
Nestled between the Mediterranean Sea and the Atlantic Ocean, and just a few kilometers from Africa, beyond the fine sandy beaches and crystal-clear waters, every corner of Cádiz is enchanting. Each apartment has been crafted to blend the exquisite 19th-century architecture with the high standards of modern urban living.






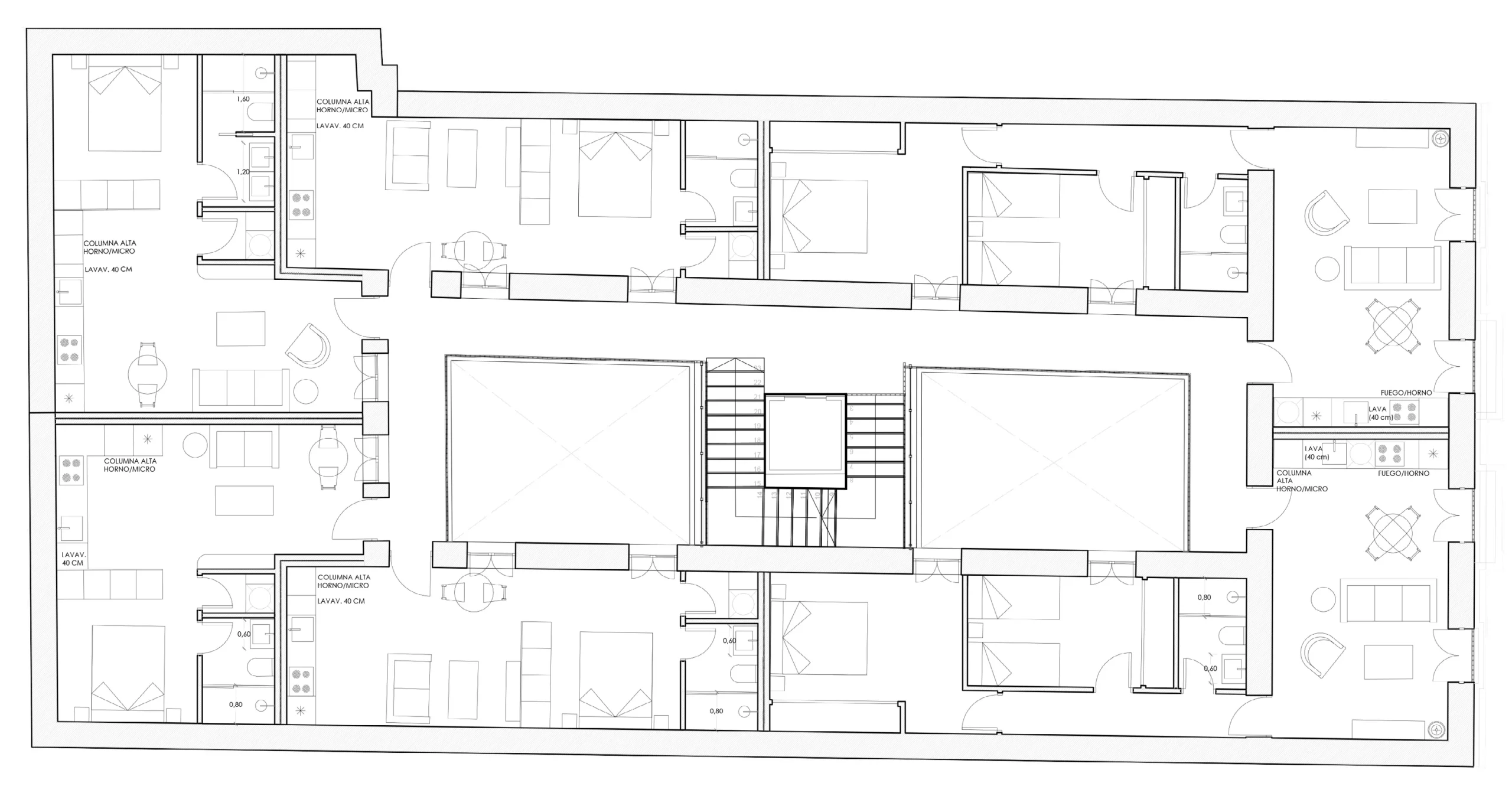
| Sup. construida con zonas comunes | 86,13 m² |
| Sup. construida sin zonas comunes | 73,21 m² |
| Sup. útil vivienda | 55,66 m² |
| Estar / Cocina | 23,43 m² |
| Baño | 3,25 m² |
| Circulación | 5,21 m² |
| Dormitorio 01 | 10,02 m² |
| Dormitorio 02 | 13,75 m² |
| Sup. construida con zonas comunes | 85,12 m² |
| Sup. construida sin zonas comunes | 72,35 m² |
| Sup. útil vivienda | 55,04 m² |
| Estar / Cocina | 23,49 m² |
| Baño | 3,21 m² |
| Circulación | 4,88 m² |
| Dormitorio 01 | 9,77 m² |
| Dormitorio 02 | 13,68 m² |
| Sup. construida con zonas comunes | 49,48 m² |
| Sup. construida sin zonas comunes | 42,06 m² |
| Sup. útil vivienda | 32,96 m² |
| Estar / Cocina / Dormitorio | 28,22 m² |
| Baño | 3,29 m² |
| Lavadero | 1,45 m² |
| Sup. construida con zonas comunes | 47,52 m² |
| Sup. construida sin zonas comunes | 40,39 m² |
| Sup. útil vivienda | 32,00 m² |
| Estar / Cocina / Dormitorio | 27,25 m² |
| Baño | 3,32 m² |
| Lavadero | 1,43 m² |
| Sup. construida con zonas comunes | 53,77 m² |
| Sup. construida sin zonas comunes | 45,70 m² |
| Sup. útil vivienda | 38,24 m² |
| Estar / Cocina / Dormitorio | 32,01 m² |
| Baño | 4,73 m² |
| Lavadero | 1,49 m² |
| Sup. construida con zonas comunes | 45,93 m² |
| Sup. construida sin zonas comunes | 39,04 m² |
| Sup. útil vivienda | 32,31 m² |
| Estar / Cocina / Dormitorio | 27,80 m² |
| Baño | 3,29 m² |
| Lavadero | 1,21 m² |
Esta memoria define el compromiso de mínimas calidades que tendrá la promoción. Esta propuesta garantiza el cumplimiento de los estándares de calidad exigidos por la normativa vigente de aplicación. Todos los materiales de construcción dispondrán del correspondiente marcado CE, sello AENOR, certificados DIT o DITE.
Muros de carga que se conservan y forjados unidireccionales con vigas de madera y solera colaborante.
El sistema estructural de las zonas de nueva estructura se compone de forjados unidireccionales de hormigón armado sobre muros de carga.
Fachada existente de muros de sillería de gran espesor y sistema de trasdosado autoportante de placas de yeso laminado con acabado pintado con pintura plástica lisa.
Fachada revestida mediante mortero de cal color a elegir por la D.R.
Cubierta transitable formada por forjado de hormigón armado, aislamiento térmico, barrera de vapor, formación de pendientes con hormigón aligerado, lámina asfáltica, mortero de regularización y pavimento de baldosa cerámica a elegir por dirección facultativa.
Las cubiertas no transitables se acabarán con capa de grava.
Tabiquería interior compuesta por sistemas de placas de yeso laminado.
Separación entre viviendas y zonas comunes formada por fábrica de ladrillo y sistema de trasdosado autoportante de placas de yeso laminado y aislamiento térmico.
Falso techo continuo de placas de yeso laminado.
Pavimento de gres porcelánico de primera calidad.
Revestimientos verticales mediante plaquetas cerámicas en baños en la zona de ducha y lavabo, resto del baño acabado con pintura plástica.
Pintura plástica para interior con acabado liso en paramentos verticales y horizontales color a elegir por la D.F.
Puerta de entrada a la vivienda con cerradura de seguridad.
Puertas interiores de paso lacadas en color blanco.
Armarios de hojas correderas a juego con la carpintería interior de la vivienda.
Carpintería de ventanas balconeras y cierres de fachada en madera de pino lacada en blanco con doble acristalamiento termoacústico con control solar y baja emisividad.
Resto de carpinterías en PVC con hojas correderas o abatibles, con doble acristalamiento termoacústico con control solar y baja emisividad.
Tubería interior de agua fría y caliente en sistema multicapa.
Desagües de aparatos y saneamiento en PVC. Producción de ACS mediante sistema individual por aerotermia.
Sanitarios y grifería de primera calidad.
Viviendas adaptadas al Reglamento Electrotécnico de Baja Tensión con instalaciones prevista para grado de electrificación básica o elevada según proyecto.
Pavimento de portal y zonas comunes con materiales porcelánicos y pétreos.
Ascensor con capacidad para 6 personas (carga nominal 450 kg), adaptada para personas con movilidad reducida.
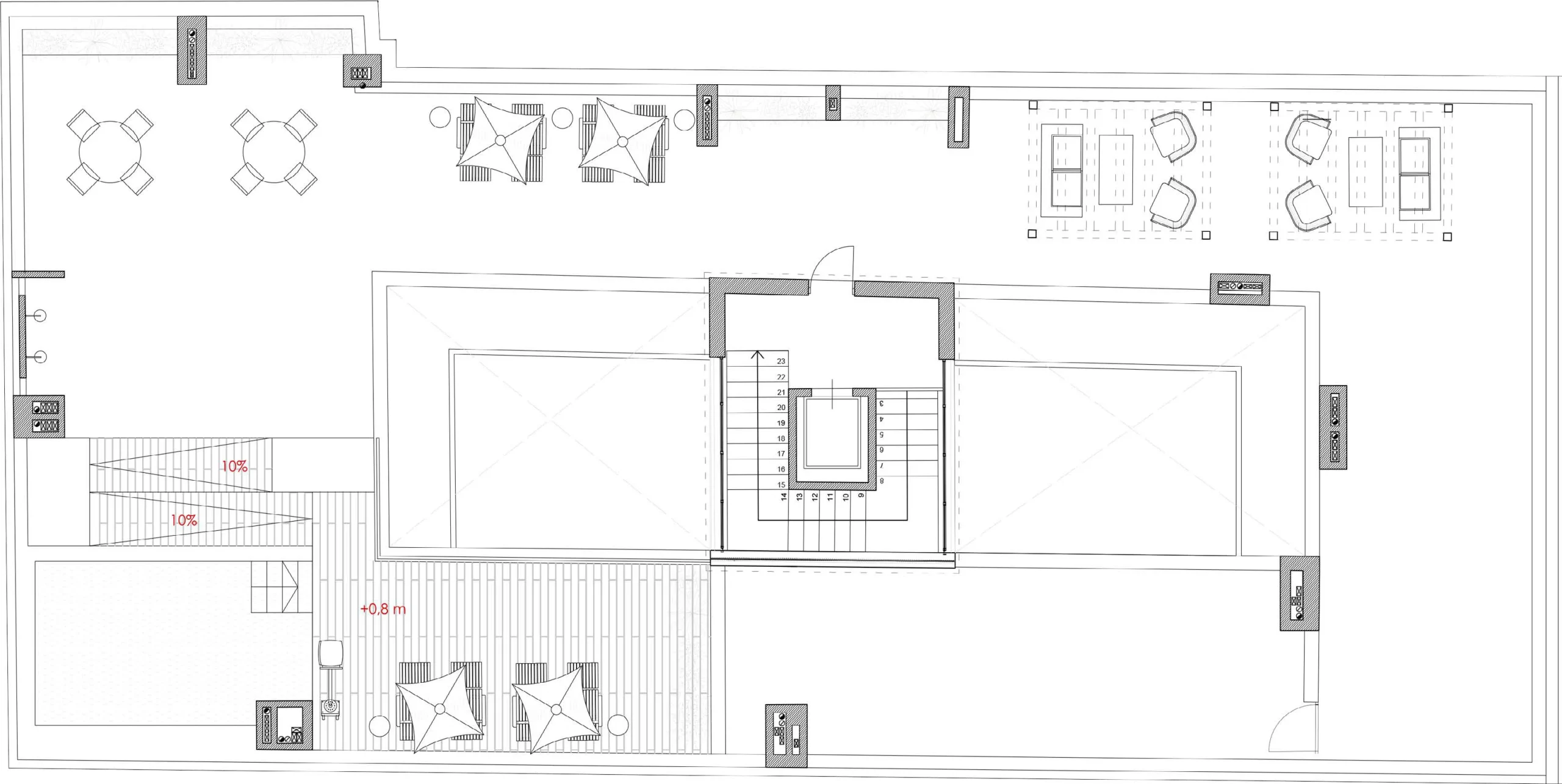
Piscina en cubierta sobrelevada. Pavimento de la piscina y de la cubierta comunitaria con materiales porcelánicos y pétreos.
Por favor, rellene el formulario para que podamos conocer más sobre usted y sus necesidades.
© Copyright 2026 Viña & Caleta. Todos los derechos reservados